Новости компании
Разработан проект отопления дома в г. Южно-Сахалинске
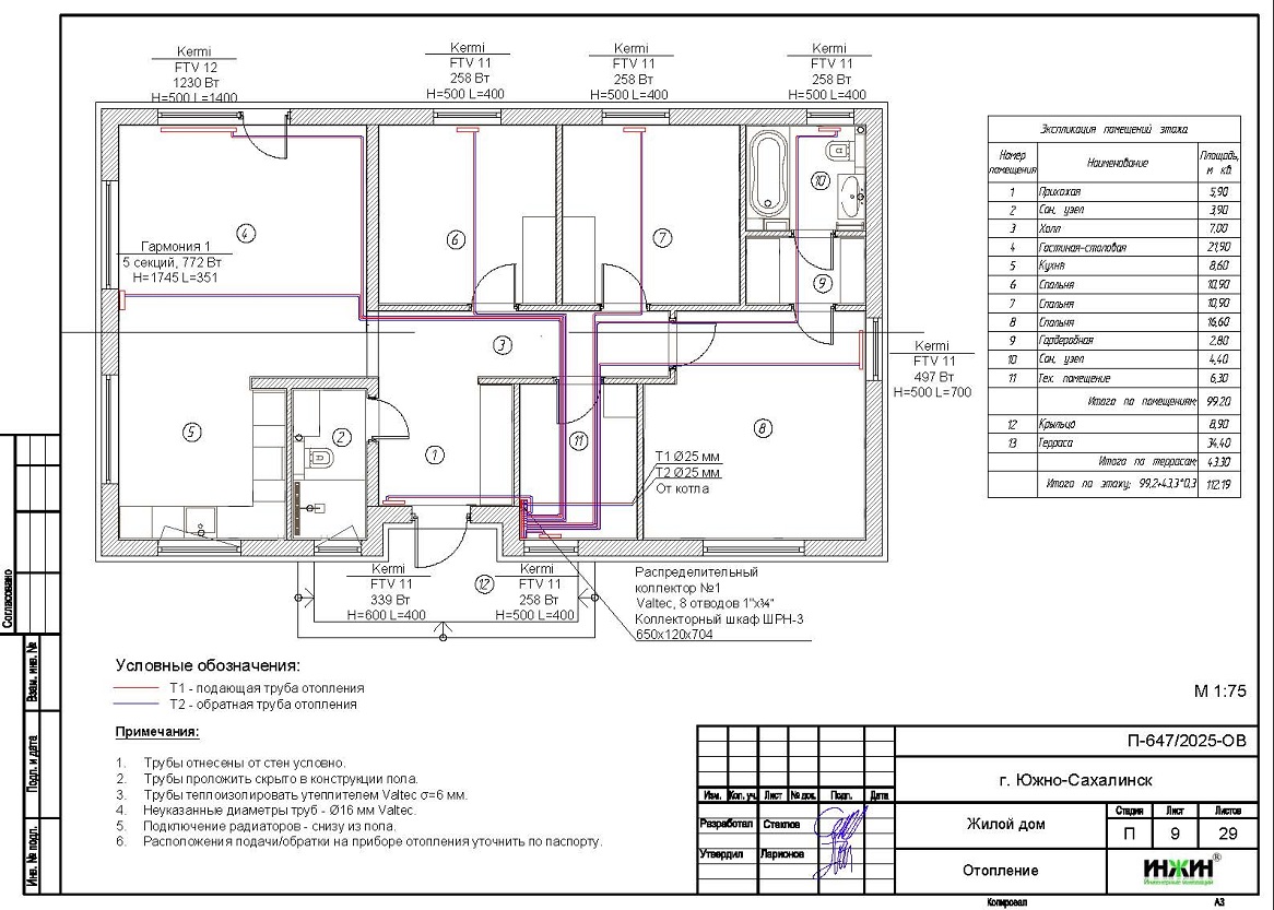
Для загородного дома со стенами из блоков Poromax (утеплитель кровли дома - минвата 200мм), площадью 99 м.кв., расположенного в г. Южно-Сахалинск, разработан проект отопления.
В проекте отопления и водоснабжения, по заданию Заказчика, предусмотрены следующие основные технические решения:
- Вариант отопления «Комфортный», с системой водяного теплого пола, в которой предусмотрено зональное регулирование;
- Индивидуальная котельная с настенным электрическим котлом Baxi Ampera, мощностью 12 кВт;
- Контуры теплоснабжения дома – 3 шт. (радиаторное отопление дома, теплый пол и горячее водоснабжение);
- Выполнен расчет отопления, расход тепла на отопление составил - 9,0 кВт, удельные теплопотери 90 Вт/м.кв.;
- Отопление дома в Южно-Сахалинске предусмотрено по коллекторно-лучевой схеме, с трубопроводами из сшитого полиэтилена Valtec;
- Приборы для системы отопления дома - стальные панельные радиаторы Kermi с нижним подключением;
- Водяной теплый пол проектом предусмотрен на площади 99 м.кв., 12 петель.
Стоимость проекта отопления дома в Южно-Сахалинске - 15 949 руб. со скидкой 10%, проект котельной бесплатно, объем проекта 29 листов.

05 июня 2025 года
- Информация о материале
- Просмотров: 4447














