Выполненные проекты
Проект отопления дома 421 м.кв. в КП «Новолуговая»
Объект: частный дом из Поротерма (Porotherm), площадью 421 м.кв., расположенный в КП «Новолуговая» Московской области
Цена проекта отопления, водоснабжения и канализации: 65 900 руб.
Проект котельной отопления, водоснабжения и канализации выполнен: 16.10.2018
Состав проекта котельной отопления, водоснабжения и канализации дома в КП «Новолуговая»:
1. Пояснительная записка проекта. Общие данные по системам отопления, водоснабжения и канализации частного дома 421 м.кв.
2. Тепломеханическая схема котельной с размещением оборудования в помещении 1-го этажа.
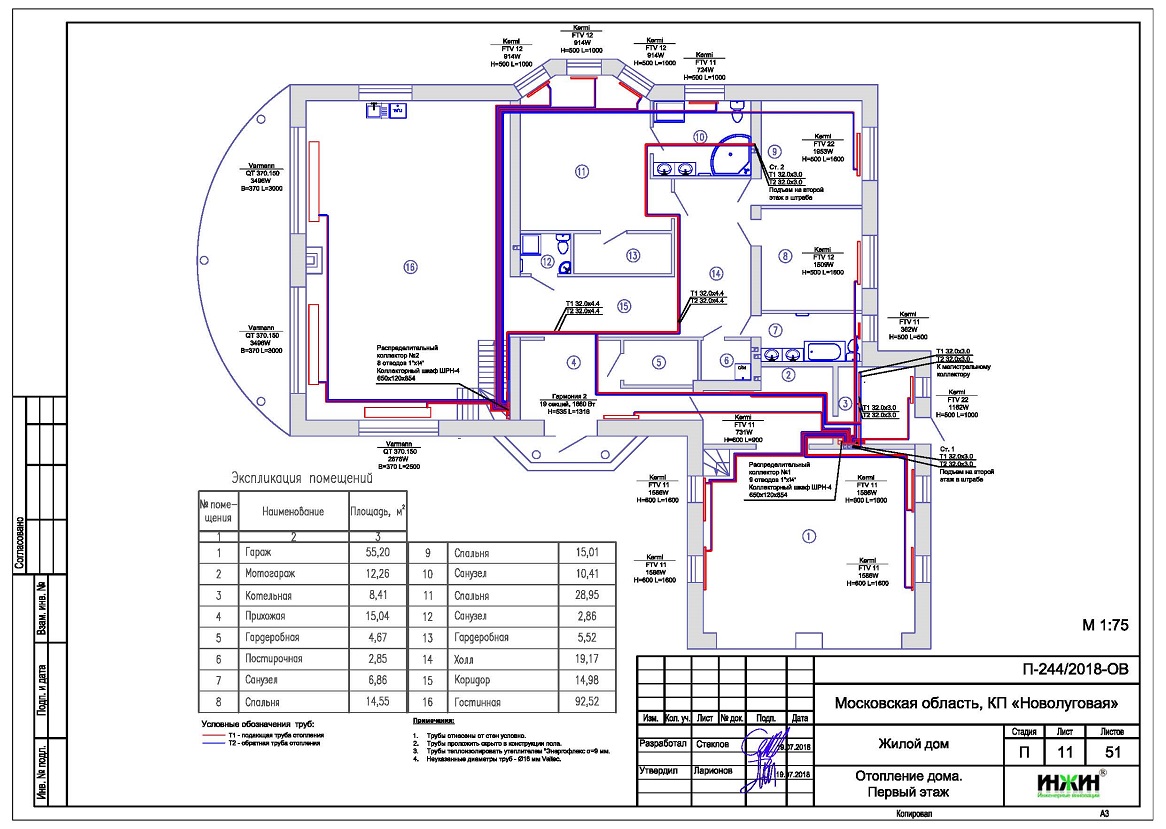
3. Комплект поэтажных чертежей радиаторного отопления дома в КП «Новолуговая».
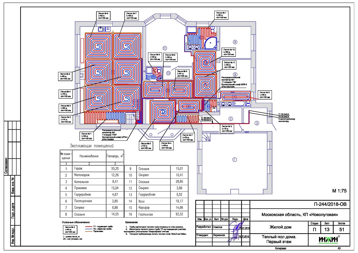
4. Комплект чертежей водяного теплого пола на 1 этаже частного дома из Поротерма.
5. Комплект чертежей внутреннего водопровода и канализации.
6. Теплотехнический расчет отопления дома из керамических блоков.
7. Спецификация материалов и оборудования по котельной, отоплению, теплому полу, водоснабжению и канализации дома в КП «Новолуговая».
Объем проекта отопления, водопровода и канализации: 51 лист.
Описание проекта отопления, котельной, водоснабжения и канализации частного дома 421 м.кв.
Котельная частного дома (проект котельной бесплатно).
o Размещена в помещении котельной 1-го этажа дома;
o Котел настенный газовый конденсационный Vaillant ecoTEC plus мощностью 44 кВт;
o Контуры теплоснабжения котельной – радиаторное отопление дома, водяной теплый пол, горячее водоснабжение (бойлер косвенного нагрева) и теплоснабжение беседки;
o Для приготовления горячей воды дома предусмотрен накопительный бойлер Vaillant uniSTOR, объемом 200 литров;
o Расширительные баки отопления и водоснабжения Flamco, объемом 50 и 18 литров;
o Циркуляционные насосы отопления и теплого пола Grundfos, использованы энергоэффективные насосы UPM3 Hybrid (в составе насосных групп), аналог насосов серии Alpha;
o Дымоудаление принудительное, дымоход коаксиальный, 80/125, вывод в строительной шахте через кровлю;
o Распределительный коллектор настенный - Meibes «Поколение 8», с насосными группами;
o Автоматика котельной – блок Vaillant calorMATIC 630/3 в комплекте с датчиками.
Автоматизация котельной, отопления и теплого пола (вариант «Комфортный»).
o Автоматическое регулирование отопления по наружной температуре (погодное регулирование);
o Автоматическое поддержание заданной температуры в контурах отопления, теплого пола и горячего водоснабжения.
Отопление дома из керамических блоков (проект отопления).
o Выполнен теплотехнический расчет отопления дома из керамических блоков Поротерм (Porotherm), с учетом теплопотерь через ограждающие конструкции при наружной температуре -28°С для Московской области (по СП 131.13330.2012), теплоотдачи отопительных приборов, теплого пола, полотенцесушителей (в санузлах) и оборудования в котельной, расчетный расход тепла на отопление дома составил 42,55 кВт;
o Подобраны приборы для отопления дома: стальные панельные радиаторы Kermi в вентильном исполнении, трубчатые радиаторы КЗТО «Гармония 2», а также встроенные в пол конвекторы Varmann с принудительной конвекцией и электронным управлением при помощи комнатных термостатов Vartronic;
o Схема радиаторного отопления дома двухтрубная, коллекторно-лучевая, с принудительной циркуляцией теплоносителя и температурным графиком 80/60°С;
o Трубы отопления из металлопластика Valtec;
o Коллекторы отопления – Valtec, на 4 (2 шт.), 8 и 9 отводов;
o Шкафы коллекторные Valtec, пристраиваемые;
o Теплоизоляция трубопроводов отопления Энергофлекс, толщиной 9мм;
o Теплоноситель в системе радиаторного отопления и теплых полов – подготовленная вода.
Водяной теплый пол дома (проект теплого пола).
o Водяной теплый пол в доме предусмотрен на первом этаже дома на площади 244 м.кв., 18 петель;
o Предусмотрен отдельный контур для теплоснабжения водяного теплого пола;
o Трубопроводы теплого пола - сшитый полиэтилен Valtec PEX-EVON;
o Коллекторы теплого пола Valtec с расходомерами на 7 и 11 отводов;
o Основание теплого пола – маты из ламинированного пенополистирола Elsen ElM01.50;
o Регулирование температуры теплого пола общее, автоматикой котельной.
Водоснабжение дома в КП «Новолуговая».
o Схема внутреннего водопровода дома – коллекторная, с рециркуляцией горячей воды через полотенцесушители;
o Коллекторы водопровода – сборные, Valtec VTc.560, с запорными вентилями;
o Выполнен расчет 40-ка точек водопровода и полотенцесушителей;
o Трубы системы водоснабжения – из металлопластика Valtec;
o Теплоизоляция трубопроводов водопровода Энергофлекс, толщиной 9мм.
Внутренняя канализация дома в КП «Новолуговая».
o Предусмотрен безнапорный отвод стоков от санитарно-технических приборов;
o Общее количество точек системы канализации – 22 шт.;
o Трубопроводы безнапорной канализации – раструбные, СИНИКОН, диаметром 50 и 110мм;
o Теплоизоляция трубопроводов канализации Энергофлекс, толщиной 13мм.



















