Выполненные проекты
Проект отопления дома в дер. Карабаново
Объект: загородный дом из бруса, площадью 124 м.кв., расположенный в дер. Карабаново Ногинского района Московской области
Вариант отопления: «Базовый»
Стоимость проекта: 9 486 руб. со скидкой 10%, проект котельной - бесплатно.
Проект выполнен: 09.06.2023
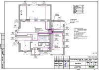
Проект электрики дома из газобетона в ДСК «Русь-1»
Объект: загородный дом из газобетона, площадью 159 м.кв., расположенный в ДСК «Русь-1», Наро-Фоминского района Московской области
Стоимость проекта электрики: 19 032 руб. со скидкой 10%, проект слаботочных кабельных линий - бесплатно.
Проект выполнен: 30.05.2023
Отопление дома в ДНП "Талицкие берега", проект
Объект: частный дом из кирпича, площадью 153 м.кв., расположенный в ДНП "Талицкие берега", Пушкинского района Московской области
Вариант отопления: «Комфортный+»
Стоимость проекта: 33 390 руб. со скидкой 10%, проект котельной - бесплатно.
Проект выполнен: 21.05.2023
Проект электрики кирпичного дома 153 м.кв.
Объект: загородный дом из кирпича, площадью 153 м.кв., расположенный в ДНП "Талицкие берега", Пушкинского района Московской области
Стоимость проекта электрики: 18 395 руб. со скидкой 10%, проект слаботочных кабельных линий - бесплатно.
Проект выполнен: 22.05.2023
Проект отопления таунхауса в КП "Лесная сказка"
Объект: таунхаус из газобетона, площадью 166 м.кв., расположенный в КП "Лесная сказка", г. Троицк (Новая Москва)
Вариант отопления: «Комфортный+»
Стоимость проекта: 37 655 руб. со скидкой 10%, проект котельной - бесплатно.
Проект выполнен: 10.03.2023
Проект отопления дома 305 м.кв. в г. Дубна
Объект: частный дом из газобетона, площадью 305 м.кв., расположенный в г. Дубна Московской области
Вариант отопления: «Комфортный»
Стоимость проекта: 74 655 руб. со скидкой 10%, проект котельной - бесплатно.
Проект выполнен: 27.04.2023
Проект электрики дома в дер. Благовещенское
Объект: частный каркасный дом, площадью 110 м.кв., расположенный в дер. Благовещенское, Дмитровского района Московской области
Стоимость проекта электрики: 13 167 руб. со скидкой 10%, проект слаботочных кабельных линий - бесплатно.
Проект выполнен: 19.04.2023
Проект отопления дома 120 м.кв. в Воронеже
Объект: частный дом из пенобетона, площадью 120 м.кв., расположенный в г. Воронеж
Вариант отопления: «Комфортный»
Стоимость проекта: 15 480 руб. со скидкой 10%, проект котельной - бесплатно.
Проект выполнен: 12.04.2023
Проект электрики дома с вентиляцией в Щелковском районе
Объект: загородный дом из керамоблоков Porotherm, площадью 280 м.кв., расположенный в дер. Оболдино Щелковского района Московской области
Стоимость проекта электрики: 33 516 руб. со скидкой 10%, проект слаботочных кабельных линий - бесплатно.
Проект выполнен: 22.03.2023
Проект отопления дома 280 м.кв. в дер. Оболдино
Объект: частный дом из керамоблоков Porotherm, площадью 280 м.кв., расположенный в дер. Оболдино Щелковского района Московской области
Вариант отопления: «Комфортный»
Стоимость проекта: 42 480 руб. со скидкой 10%, проект котельной - бесплатно.
Проект выполнен: 21.03.2023
Электрика таунхауса 170 м.кв. в ЖК «Орлов»
Объект: таунхаус общей площадью 170 м.кв., расположенный в ЖК «Орлов», Ленинского района Московской области
Стоимость проекта электрики: 20 349 руб. со скидкой 10%, проект слаботочных кабельных линий - бесплатно.
Проект выполнен: 07.03.2023
Проект электрики дома площадью 160 м.кв. в Карелии
Объект: частный каркасный дом, площадью 160 м.кв., расположенный в поселке Райвио, республика Карелия
Стоимость проекта электрики: 19 152 руб. со скидкой 10%, проект слаботочных кабельных линий - бесплатно.
Проект выполнен: 22.02.2023
Отопление дома 144 м.кв. с баней в Луховицах, проект
Объект: частный дом из газобетона, с баней, общей площадью 144 м.кв., расположенный в г. Луховицы Московской области
Вариант отопления: «Комфортный»
Стоимость проекта: 34 488 руб. со скидкой 10%, проект котельной - бесплатно.
Проект выполнен: 06.02.2023
Проект электрики каркасного дома в республике Коми
Объект: частный дом (каркасный), площадью 111 м.кв., расположенный в г. Ухта, республика Коми
Стоимость проекта электрики: 13 287 руб. со скидкой 10%, проект слаботочных кабельных линий - бесплатно.
Проект выполнен: 13.01.2023
Отопление таунхауса в КП "Футуро Парк" (240 м.кв.)
Объект: четырехэтажный таунхаус из монолитного бетона, площадью 240 м.кв., расположенный в КП "Футуро Парк" Московской области
Вариант отопления: «Комфортный»
Стоимость проекта: 49 680 руб. со скидкой 10%, проект котельной - бесплатно.
Проект выполнен: 27.01.2023













