Выполненные проекты
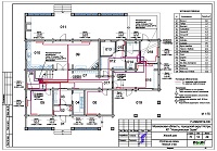
Проект отопления дома 184 м.кв. в Королёве

Объект: двухэтажный загородный дом из газобетонных блоков, площадью 185 м.кв., расположенный в г.Королёв (мкр Первомайский) Московской области
Вариант отопления: «Комфортный»
Стоимость проекта: 28 968 руб. со скидкой 10%, проект котельной - бесплатно.
Проект выполнен: 04.03.2021
Отопление дома 561 м.кв. с баней и бассейном, проект

Объект: частный дом из керамических блоков и клееного бруса, с гаражом и баней с бассейном, общей площадью 561 м.кв., расположенный в КП "Озерный Край Лыщево", Истринского района Московской области
Вариант отопления: «Комфортный»
Стоимость проекта отопления: 46 328 руб. со скидкой 10% (проект котельной и теплотрассы бесплатно).
Проект выполнен: 01.03.2021
Проект отопления дома 110 м.кв.

Объект: деревянный дом (брус) общей площадью 110 м.кв. в СНТ "Мельник" Солнечногорского района Московской области.
Вариант отопления: «Базовый»
Стоимость проекта: 14 850 руб. со скидкой 10%, проект котельной - бесплатно.
Проект выполнен: 16.02.2021
Проект электрики деревянного дома в СНТ Мельник
Объект: дом из бруса общей площадью 110 м.кв. в СНТ "Мельник" Солнечногорского района Московской области
Стоимость проекта электрики: 9 405 руб. со скидкой 10%, проект слаботочных кабельных линий - бесплатно.
Проект выполнен: 15.02.2021
Отопление дома 197 м.кв. в СНТ "Загорново-2", проект

Объект: загородный дом из бруса, площадью 197 м.кв., расположенный в СНТ "Загорново-2" Московской области.
Вариант отопления: «Базовый»
Стоимость проекта: 29 595 руб. со скидкой 10%, проект котельной - бесплатно.
Проект выполнен: 10.02.2021
Проект электрики деревянного дома с баней в СНТ "Березка"

Объект: загородный дом с гаражом и баней, общей площадью 207 м.кв., расположенный в СНТ "Березка", Красногорского района
Стоимость проекта электрики: 17 699 руб. со скидкой 10% за комплексный проект электрики и отопления (проект слаботочной кабельной сети – бесплатно).
Проект выполнен: 05.02.2021
Проект отопления дома 207 м.кв. с гаражом и баней

Объект: частный дом из клееного бруса, с гаражом и баней, общей площадью 207 м.кв., расположенный в СНТ "Березка", Красногорского района Московской области
Вариант отопления: «Комфортный»
Стоимость проекта отопления: 33 129 руб. со скидкой 10% (проект котельной и теплотрассы бесплатно).
Проект выполнен: 04.02.2021
Проект отопления таунхауса в КП "Футуро Парк" (168 м.кв.)

Объект: трехэтажный таунхаус из монолитного бетона, площадью 168 м.кв., расположенный в КП "Футуро Парк" Московской области
Вариант отопления: «Комфортный»
Стоимость проекта: 24 048 руб. со скидкой 10%, проект котельной - бесплатно.
Проект выполнен: 27.01.2021
Проект электрики дома 356 м.кв. в КП «Лес и Река»
Объект: дом из кирпича общей площадью 356 м.кв. в КП «Лес и Река», Московской области
Стоимость проекта электрики: 30 438 руб. со скидкой 10%, проект слаботочных кабельных линий - бесплатно.
Проект выполнен: 20.01.2021
Отопление дома 231 м.кв. в КП "Павловы Озера", проект

Объект: загородный дом из газобетонных блоков, площадью 231 м.кв., расположенный в КП "Павловы Озера" Московской области.
Вариант отопления: «Комфортный»
Стоимость проекта: 31 185 руб. со скидкой 10%, проект котельной - бесплатно.
Проект выполнен: 11.01.2021
Электрика таунхауса 260 м.кв. в Жуковском, проект
Объект: таунхаус площадью 260 м.кв. в г.Жуковский Московской области
Стоимость проекта электрики: 22 230 руб. со скидкой 10%, проект слаботочных кабельных линий - бесплатно.
Проект выполнен: 25.12.2020
Проект отопления дома в КП "Подосинки Ленд"

Объект: загородный дом из бруса общей площадью 227 м.кв. в КП "Подосинки Ленд" Тульской области.
Вариант отопления: «Комфортный»
Стоимость проекта: 38 421 руб. со скидкой 10%, проект котельной - бесплатно.
Проект выполнен: 21.12.2020
Проект электрики дома 227 м.кв.в Тульской области
Объект: дом из бруса общей площадью 227 м.кв. в КП "Подосинки Ленд" Ясногорского района Тульской области
Стоимость проекта электрики: 19 410 руб. со скидкой 10%, проект слаботочных кабельных линий - бесплатно.
Проект выполнен: 18.12.2020
Отопление дома 166 м.кв. в Тверской области, проект

Объект: загородный дом из газобетонных блоков, площадью 166 м.кв., расположенный в Тверской области.
Вариант отопления: «Комфортный»
Стоимость проекта: 20 889 руб. со скидкой 10%, проект котельной - бесплатно.
Проект выполнен: 10.12.2020
Электрика дома в с. Гатное Киевской области, проект
Объект: дом из газобетона общей площадью 121 м.кв. в с. Гатное Киевской области (Украина)
Стоимость проекта электрики: 10 346 руб. со скидкой 10%, проект слаботочных кабельных линий - бесплатно.
Проект выполнен: 01.12.2020













