Проекты электрики
Проекты электрики
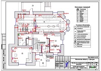
Проекты систем электроснабжения и освещения (электрики), выполненные компанией «Инженерные Инновации» для частных домов, расположенных в Московской, Рязанской, Ивановской, Владимирской, Тульской, Тверской, Нижегородской, Калужской и Ярославской областях.
Чертежи слаботочных кабельных линий выполнены бесплатно.








